Holzbautendokumentation - Holzbauten Detail
Veranstaltungs- und Seminarzentrum Weissensee-Haus, Kärnten

Veranstaltungs- und Seminarzentrum Weissensee-Haus, Kärnten

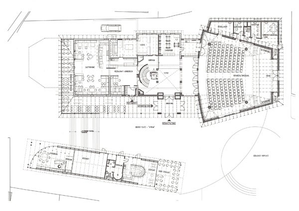
Die wichtigsten Entwurfgedanken waren der Erhalt großer Teile des Altbestandes, um ein wirtschaftliches Projekt zu ermöglichen und die Schaffung von großräumigen Flächen für die Öffentlichkeit. Die architektonische Grundhaltung ist bestimmt durch die Verbindung von archaisch-ländlichen Architekturelementen mit schlichter, luftiger Holzbauweise als bewusst eingesetztes Stilmittel der Seearchitektur. Die bestehende Kubatur wurde im Untergeschoß und Erdgeschoß im wesentlichen adaptiert. Ab dem 1. Obergeschoß wurde der bestehende Baukörper verschmälert, dadurch entstand eine neue Firstlinie als Achse mit schlankerem Giebel für den Hauptbaukörper. Der neue Veranstaltungssaal bildet den südlichen Abschluss des Hauptbaukörpers, dessen Satteldach bis zur Bühnenvorderfront weiter geführt wurde. Dadurch war innenräumlich die Ausbildung einer Zweigeschoßigkeit des Saales mit Galerie und einem von der Galerie abtrennbaren Seminarraum möglich. Im Westen begrenzt ein zweiter schlanker Baukörper den oberen Platz. Hier befinden sich Stehcafe und die Tourismusinformation.

Weissensee

Kärnten

2003

Kategorie
Gebäude
Veranstaltungs- und Seminarzentrum


Firmen/Bauherr
Bauherr
Gemeinde Weissensee

9762

Weissensee

Techendorf 90

info@weissensee.at

+43 47132220

+43 4713222055

www.weissensee.at


Planer
DI Andrea und DI Dr. Herwig Ronacher - Architekten Ronacher

9620

Hermagor

Khünburg 86

Österreich


Ausführende Holzbaufirma
Holzbau Pichler

9634

Gundersheim

Gundersheim Nr. 14

office@holzbau-pichler.at

+43 4718365

+43 47183657

www.holzbau-pichler.at


Statiker
DI Welf Zimmermann

9611

Nötsch

Nötsch 120

dizimmermann@aon.at

+43 42562151

+43 4256215121

Technische Beschreibung
Dimensionen
2

2


1446,0 m2



Bausystem
Skelettbau

Konstruktionselemente
Primärkonstruktion
Mit Ausnahme des aufgehenden Mauerwerks des Veranstaltungssaales sind praktisch alle baulichen Erweiterungen im konstruktiven Holzbau errichtet. Die beiden Satteldächer wurden generell mit Sprengwerk in ingeneurmäßiger Ausführung für eine stützenfreie Raumnutzung ausgebildet.


Außenwandkonstruktion

Stülpschalung / Leistenschalung Lärche
Lattung 2,0 cm
AGEPAN Nut und Federverbindung 1,6 cm
Skelettkonstruktion mit Steinwolle 20,0 cm
OSB-Platten mit Nut- und Federverbindung 1,5 cm
LAttung mit Steinwolle
PE-Folie
Streuschalung 2,0 cm
Gipskartonpaltte 1,25 cm


30


Dachkonstruktion

Satteldach mit Sprengwerk als Hauptgespärre aus Brettschichtholz Fichte, Rundsäulen Pilzkonstruktionen: Ø 24 cm

Dachlattung 6/4 cm
Konterlattung 8/6 cm
Dachbahn Difux
Schalung 2,5 cm
Sparr 10/20 cm, dazwischen Steinwolle
PE-Folie verklebt
Streuschalung 2,0 cm


30


Fassadengestaltung mit Holz
Stülpschalung
Sockelausbildung mit Zementfaserplatten

Holzschutz
Vordach
natürlich dauerhafte Holzarten: Lärche

Oberflächenbehandlung der Fassade

Lärche farblos imprägniert

Materialauszug
Material Anteil am Bauvolumen in %
Brettschichtholz - - 47
Stahl (t) 2,4 t - -
Energietechnisches Konzept
Standardgebäude

Biomasse
mechanische Be- und Entlüftung

45 kWh/m²a


Biomasse

Pellets

Bilder