Holzbautendokumentation - Holzbauten Detail
Kindergarten Kranebitten

Kindergarten Kranebitten

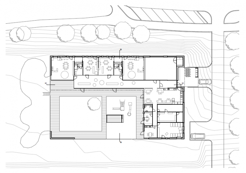
Ein zauberhafter Platz, der entspannter Freizeit, Spiel, Sport und Kommunikation gewidmet ist. Wie eine geräumige Waldlichtung öffnet sich der Raum nach Südwesten, zu den Zelten hin. Meist liegt der verführerische Duft von Gegrilltem in der Luft. Die Bäume im Norden und Osten wie eine schützende grüne Wand. HALTUNG: Wir versuchen ebenso entspannt, leicht und selbstverständlich zu bauen: Keine großen Erdbewegungen. Auf den bereits eingeebneten Bauplatz in der östlichen Hälfte des Fußballplatzes wird der ebenerdige eingeschoßige Garten für Kinder gesetzt. INTIMITÄT: Erfahrungsgemäß verlangt der Kinderbetreuungsalltag eine physische Abgrenzung zum öffentlichen Freiraum. Das ist meist ein Zaun, der dann mit Planen behängt, die Blicke von außen abhalten soll. Wir wollen die offensichtlich notwendige Intimität auf andere Weise bieten: NIVEAU UND RAHMEN: Der Garten der Kinder liegt etwa um Tischhöhe über dem westlichen Spielplatz. Die Brüstung dient ausschließlich als Blickschutz, die umlaufende gedeckte Terrasse rahmt den Garten ein und ist zugleich Sonnen- und Regendach.

Innsbruck

Tirol

2015

Kategorie
Gebäude
Kindergarten


Firmen/Bauherr
Bauherr
Innsbrucker Immobilien GmbH & CoKG

6020

Innsbruck

Roßaugasse 4

Tirol

Innsbruck

info@iig.at

0512 4004

www.iig.at


Planer
reitter architekten zt gesmbh

6020

Innsbruck

Adolf Pichler Platz 6

Tirol

Innsbruck

reitter@reitter.cc

0512 294099

www.reitter.cc


Ausführende Holzbaufirma
Schafferer Holzbau GesmbH

6145

Navis

Außerweg 61 B

Österreich

Innsbruck-Land

info@schafferer.at

+43 5273 64340

+43 5273 643440

http://www.schafferer.at


Ausführende Tischlerei
Möbeltischlerei Sumper

6020

Innsbruck

Trientlgasse 68

Tirol

Innsbruck

office@sumper.at

0512 341390

http://www.sumper.at


Statiker
DI Alfred R. Brunnsteiner Ziviltechnikergesellschaft mbH

6161

Natters

In der Stille 11

Österreich

Innsbruck-Land

office@dibral.at

+43 512 546919

+43 512 54691914

http://www.dibral.at/

Technische Beschreibung
Dimensionen
1

1


2371 m2

727 m2

1013 m2

3204 m3


Bausystem
Mischbau (Prinzip)

Konstruktionselemente
Außenwandkonstruktion

Binder Brettsperrholz, Stegträger dazwischen Isocell (Zellulosefaserdämmstoff), diffusionsoffene Holzfaserplatte, Isocell Winddichtung, Hinterlüftung, Holzschalung Weißtanne;


0,13 W/m²K


Dachkonstruktion

Substratschicht bzw. Kies, Drainschicht, Schutz und Filtervlies, Flachdachdämmung (XPS SL-A), FBO – Folienbahn, Austrotherm EPS W25 Plus, Gefälledämmung, AUSTROTHERM EPS W25 PLUS, Dampfsperre Bitumen mit Alueinlage; Binderholz Brettsperrholz BBS, Unterkonstruktion dazwischen Installationsebene, GK – Decke


0,09 W/m²K


Holzschutz
natürlich dauerhafte Holzarten: Fassade - Weißtanne sägerauh, Terrasse - Lärche

Energietechnisches Konzept
Nullheizenergiegebäude bzw. Passivhaus

Lage zur Sonne

Wärmepumpe monovalent

elektrisch

Angaben laut Energieausweis
A++

Bilder