Holzbautendokumentation - Holzbauten Detail
Einfamilienhaus D./M. Zu- und Umbau, Kramsach

Einfamilienhaus D./M. Zu- und Umbau, Kramsach

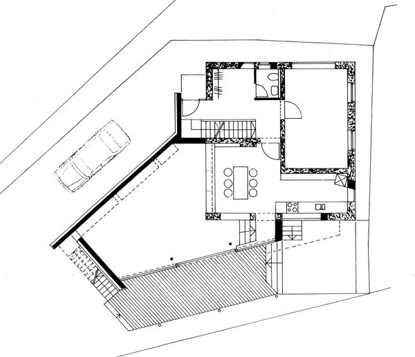
Das Einfamilienhaus D./M. liegt auf einem winzigen Grundstück an der Brandenburger Ache. Der Zubau an das alte Haus aus den 60igern besteht aus einer Konstruktion aus Stahlstützen, Brettschichtholzträgern und einer Betonscheibe. Die verlorene Gartenfläche wird durch die Dachterrasse des Zubaues ersetzt. Die subtile Variante des Satteldaches aus gebogenen Brettschichtholzträgern sorgt für ein eigenwilliges Raumerlebnis und zeigt einen intelligenten und heiteren Umgang mit den örtlichen Bauvorschriften.

Mariathal 430a, Kramsach

Tirol

1997

Kategorie
Gebäude
Einfamilienhaus


Firmen/Bauherr
Bauherr
Dr. Hermann Drexel/Mag. Cecilia Drexel-Maristany

6233

Kramsach

Ebner 32

+43 533767040


Planer
Arch. DI Manfred Gsottbauer

6020

Innsbruck

Müllerstraße 28/Stöckl

Österreich

architektur@gsottbauer.at

+43 512 587305

+43 512 58730516


Ausführende Holzbaufirma
Josef Rieder KG

6330

Kufstein

Eibergstraße 10

Österreich

Kufstein


Statiker
DI Dr. Michael Huter

6020

Innsbruck

Sebastian Kneipp Weg 17

0512/284883

Technische Beschreibung
Dimensionen
4

3


329 m2

890 m3

Ja

206 m2



Bausystem
Mischbau (Prinzip)
Rahmenbau
Zubau: Stahlstützen und Betonscheibe in Verbindung mit Stahlträgern - dazw. Brettschichtholz-TrägerDachausbau: Gebogene Brettschichtholz-Trägerkonstruktion

Konstruktionselemente
Außenwandkonstruktion

Lärchenschalung offen 2,5 cm
Lattung/Hinterlüftung 3,0 cm
Bitumen-Weichfaserplatte 2,0 cm
Wärmedämmung im Gefachbereich 16,0 cm
OSB-Platte 1,5 cm
Dampfbremse
Sperrholzplatte 0,6 cm


0,241 W/m²K


Dachkonstruktion

ETERNOVA-Welldeckung
Lattung mit Hinterlüftung
Bitumen-Weichfaserplatte
Brettschichtholz-Träger 20,0 cm
Wärmedämmung im Gefachbereich
Dampfbremse
Sperrholzplatte 0,6 cm


0,209 W/m²K


Sonstiges

Lattenrost
Schutzbeton 5,0 cm
Bauschutzmatte
Feuchtigkeitsisolierung
Wärmedämmung 22,0 cm
Dampfbremse
3-Schichtplatte Lärche 2,6 cm
Brettschichtholz Lärche zwischen den Stahlträgern 4,0 × 18,0 cm


0,169 W/m²K


Holzschutz
Vordach
natürlich dauerhafte Holzarten: Lärchenschalung mit offener Fuge

Energietechnisches Konzept
Energiespargebäude

durch Südausrichtung passive Solargewinne

Biomasse
Gas

Holz für Grundofen

Bilder