Holzbautendokumentation - Holzbauten Detail
Doppelhaus Lohbachufer

Doppelhaus Lohbachufer

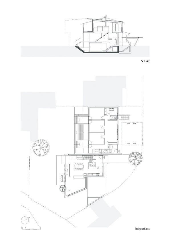
Anstelle eines mittlerweile baufällig gewordenen Hauses aus der Zwischenkriegszeit entstand auf dem nur 729m² großen Grundstück als maßvolle Nachverdichtung ein Doppelhaus für zwei Familien. Bei den individuell zugeschnittenen Haushälften wurde Holz vielseitig eingesetzt. Hervorzuheben sind die guten holzspezifischen Ansätze. Die geschützten Fassadenteile wurden mit hinterlüfteten, phenolharzbeschichteten Sperrholzplatten verkleidet, an den exponierten Stellen kam Zinkblech als Witterungsschutz zum Einsatz.

Innsbruck

Tirol

2003

Kategorie
Gebäude
Mehrfamilien-/Doppelhaus


Firmen/Bauherr
Bauherr
Claudia Baumgartl, Thomas Unterleitner/Natalie Hirtl, Markus Kern

6020

Innsbruck

Lohbachufer 27


Planer
Arch. DI Manfred Gsottbauer

6020

Innsbruck

Müllerstraße 28/Stöckl

Österreich

architektur@gsottbauer.at

+43 512 587305

+43 512 58730516


Ausführende Holzbaufirma
Dach+Fach Holzbau GmbH

6404

Polling in Tirol

Gewerbezone 5

Österreich

Innsbruck-Land

info@dachundfach.at

+43 5262 61133

+43 5262 6113340

http://www.dachundfach.at


Ausführende Tischlerei
Tischlerei Perktold

6143

Pfons bei Matrei

Waldfrieden 28

+43 52736626

+43 52736626


Statiker
DI Reinhard Donabauer

6020

Innsbruck

Adolf-Pichler-Platz 12

donabauer@aon.at

0512/273891

0512/273891

Technische Beschreibung
Dimensionen
3

2


729 m2

377,17 m2

177,91 m2

824,19 m3

415,56 m2


0,517


Bausystem
Rahmenbau

Konstruktionselemente
Außenwandkonstruktion

Sparschalung und Zinkblechverkleidung 2,5 cm
bzw. phenolharzbeschichtete Sperrholzplatten
Lattung/Hinterlüftung 3,0 cm
Agepan DWD-Platte 1,5 cm
Holzriegelkonstruktion aus KVH 20 cm
Steinwolle im Gefachbereich 20 cm
Dampfsperre
OSB-Platte 1,5 cm
Lattung/Wärmedämmung 3,0 cm
Gipskartonplatte 1,2 cm


0,182 W/m²K


Deckenkonstruktion

Klebeparkett 1,0 cm
Zementestrich 6,0 cm
Trittschalldämmung 3,0 cm
PE-Folie
Kiesschüttung 5,0 cm
OSB-Platte 1,5 cm
Konstruktionsvollholz 20,0 cm
Gipskartonplatte 1,2 cm
Steinwolle im Gefachbereich 20,0 cm



Dachkonstruktion

Zinkblechdeckung
Schwarzdeckung und Klöbermatte
Sparschalung 2,5 cm
belüfteter Dachraum
Steinwolle 5,0 cm
OSB-Platte 1,5 cm
Sparrenlage 30,0 cm
Steinwolle im Gefachbereich 30,0 cm
Dampfsperre
OSB-Platte 1,5 cm
Lattung/Installationsebene 3,0 cm
Gipskartonplatte 1,2 cm


0,12 W/m²K


Fassadengestaltung mit Holz
Holzwerkstoffplatten
phenolharzbeschichtetes Sperrholz

Holzschutz
natürlich dauerhafte Holzarten: Fenster aus Lärche

Energietechnisches Konzept
Niedrigenergiegebäude

durch Südorientierung Solargewinne

Biomasse
Gas
Solar
kontrollierte Wohnraumlüftung

Gas
Solar
Luft/Luft Wärmepumpe

27 bzw. 33 kWh/m²


Pellets

Bilder