Innenräume - Innenraumdokumentation Detail
Küche

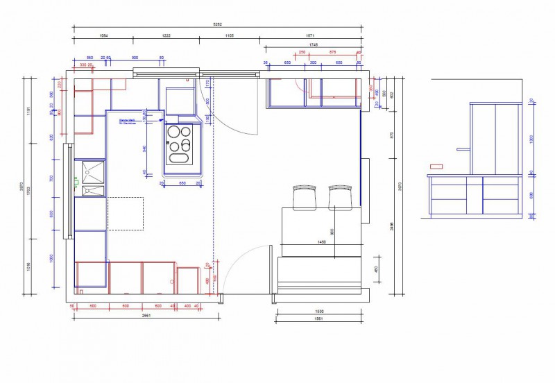
Küche "Christine und Klausi"

Tischlerküche – Die Moderne! Ausgangssituation: Die Kunden kamen mit einem Vorentwurf des neuen Hauses zu uns, mit der Bitte sich über die Küche Gedanken zu machen. Gemeinsam mit dem Planer des Hauses wurde dann festgelegt wo die Öffnungen für Fenster und Türen sein sollen, um eine möglichst helle und großzügige Küche zu erhalten. Wunsch des Kunden: Die Küche soll modern und hell sein. Auf einen großen Esstisch kann verzichtet werden, da eine extra Stube mit großem Tisch eingeplant ist. Auch eine Kochinsel für kommunikatives Kochen sollte integriert sein. Als Arbeitsfläche wünscht sich der Kunde einen dunklen Granit und eine großes Ceranfeld. Die Planung: In der Planung haben wir bewusst auf eine freistehende Kochinsel verzichtet, da der dafür notwendige Platz nicht vorhanden war. Um den Wunsch des Kunden nicht ganz auszuschlagen und das kommunikative Kochen beibehalten werden kann, haben wir eine anstehende Kochinsel mit Blick zum Esstisch eingeplant. Die Decke wurde mit Rigips von uns abgehängt, die Deckenspots und der Dunstabzug wurden integriert. Somit erhielt man eine optische Trennung zwischen Koch- und Essbereich. Ausführung Küche: In indischer Apfel (Tineo) Natur lackiert, Innenleben aus Dekor. Fronten: Weiß Spiegelglanz mit echtem Schichtstoff belegt. Schubladen: Ahorn massiv – selber gefertigt! Unterteilungen und Inneneinteilung nach Wunsch des Kunden angefertigt. Blum Movento Führungen eingebaut. Arbeitsplatte: Granit Nero Assoluto poliert. Griffe: Edelstahl – Relinggriffe. Boden: Celenio Athos ferro, geklebt. Einbaugeräte: Miele. Essbereich: Für vier Personen, indischer Apfel, Polsterung weißes Leder und gegenüber großzügige Vitrine für Geschirr. Besonderheit: Der Essbereich wurde bewusst an diese Wand geplant, da der Kachelofen im Wohnzimmer die Küche und den Gang mit heizt und die Wand dadurch Wärme abstrahlt.
Tirol

2015

Detailinformation
Privat

Küche

Ahorn
indischer Apfel

Lack

Firmen

Planer/Designer
Tischlerei Klaus Buchauer

6341

Ebbs

Buchberg 39

Tirol

Kufstein

office@buchauer.at

+43537343138

+43537343138 24

www.buchauer.at


Ausführende Tischlerei
Tischlerei Klaus Buchauer

6341

Ebbs

Buchberg 39

Tirol

Kufstein

office@buchauer.at

+43537343138

+43537343138 24

www.buchauer.at


Bilder