Projekte Detail
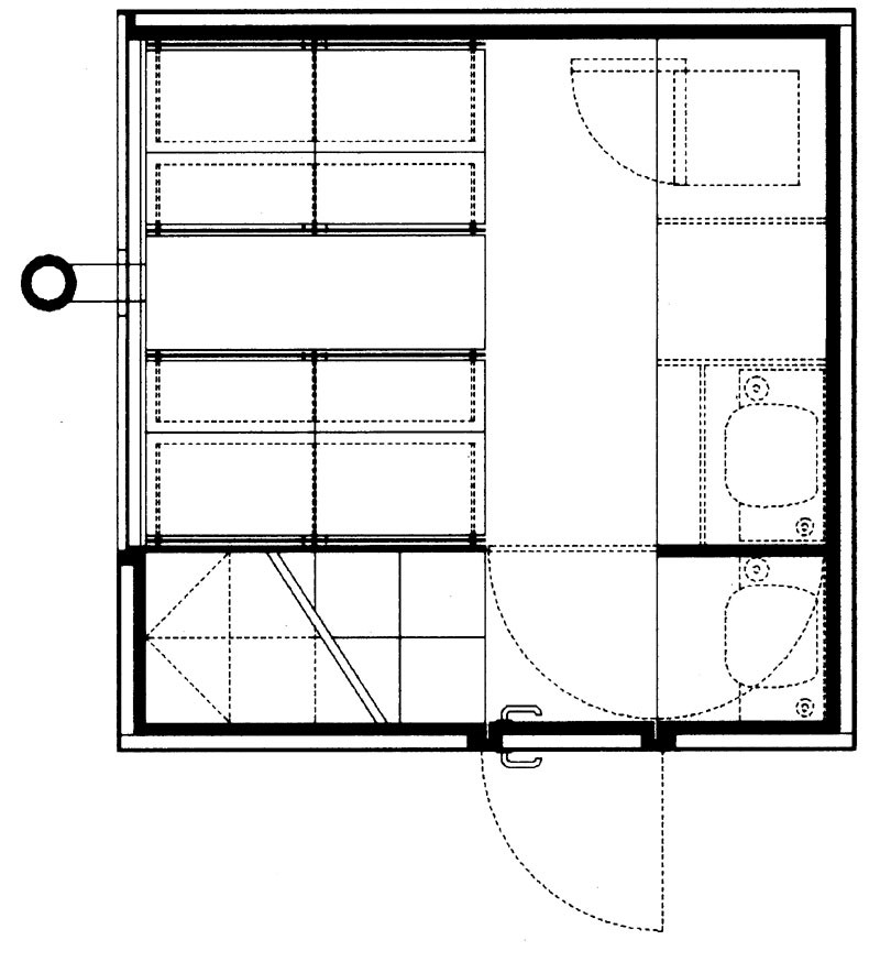
Minibox, Innsbruck

Minibox, Innsbruck

Das Aussergewöhnliche dieses Projekts liegt in der Reduktion und Umsetzung von Holzarchitektur auf minimalem Raum verbunden mit hoher Funktionalität. Ein Container aus Holz mit minimaler Seitenlänge (2,6m) bietet ein Maximum an Möglichkeiten (Koch-Ess-Schlafmöglichkeit für 4 Personen). Die Box kann per LKW oder Hubschrauber überallhin transportiert werden und sorgt für Gemütlichkeit in den Bergen, Gletschern und Wäldern. Ein Minimal-Maximal System für Individualisten und Extremisten.

Bilder